Pennsburg Bath

Pennsburg Bath
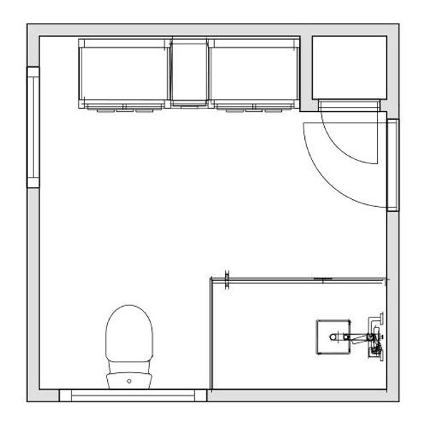
This bathroom renovation focuses on improving layout, functionality, and overall style. The existing built-in tub will be removed and replaced with a larger walk-in tile shower to create a more open and modern space. Relocating the toilet to an adjacent wall allows for a larger shaker-style vanity with a white quartz countertop, providing better storage and daily usability. Gold hardware and faucets will add warmth and a refined finishing touch to the design. Outdated flooring will be replaced with herringbone luxury vinyl plank, completing a brighter, more functional bathroom designed for long-term performance.